81-85 East Street|Southampton|SO14 3HQ|United Kingdom
Park Life is a modern co-living, flexible student accommodation development situated in the ‘Heart of the City Quarter’ which helps to improve students mental health whilst creating integrated communities.
Southampton has over 32,000 full-time students in university-based Higher Education. Currently, the university halls of residence meet the demand of approximately only 7,800 students.
The current private sector halls of residence only meet the demand of approximately 5,300 students. Meaning the combined accommodation supply only completes 41% of the need for students living in the city, with 15.5% provided by the PBSA schemes.
19,000+ students are still unable to access purpose-built accommodation. (Knight Frank 2019)
Student numbers predicted to increase by 27% by 2030. (JLL Dec 2019) with the private sector expected to play a crucial role in addressing this demand.
Room rents in Southampton remain high, placed 5th out of 15 in recent agency analysis. The city is considered a healthy market for PBSA investment.
The next natural step in the evolution of student housing
- Quality personal space
- Interactive areas
- En suite rooms
- Modern bedroom layouts designed to have kingsize beds, mini fridges and
wall-mounted televisions - Rooms laid out around a central light-filled atrium
- Solar shading and an urban green wall
- Communal facilities including shared living spaces including;
- Centralised social kitchens
- Laundry room
- Cinema
- Communal lounge and gym - The efficient design contains 80% of bedrooms, a single format helping to support the economy and speed of construction
- The development achieves BREEAM outstanding level at pre-assessment stage
- Designed to the highest level of sustainability
- Designed to a very high environmental standard
- The scheme exceeds local performance requirements of Excellent (>70%) by over 20%.
About N & A Property Development
Our addition to the ‘East – West Link’ will enhance the experience of East Street en route to the city centre.
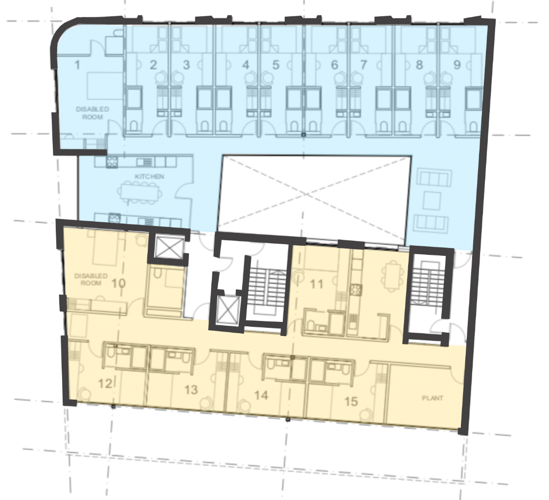
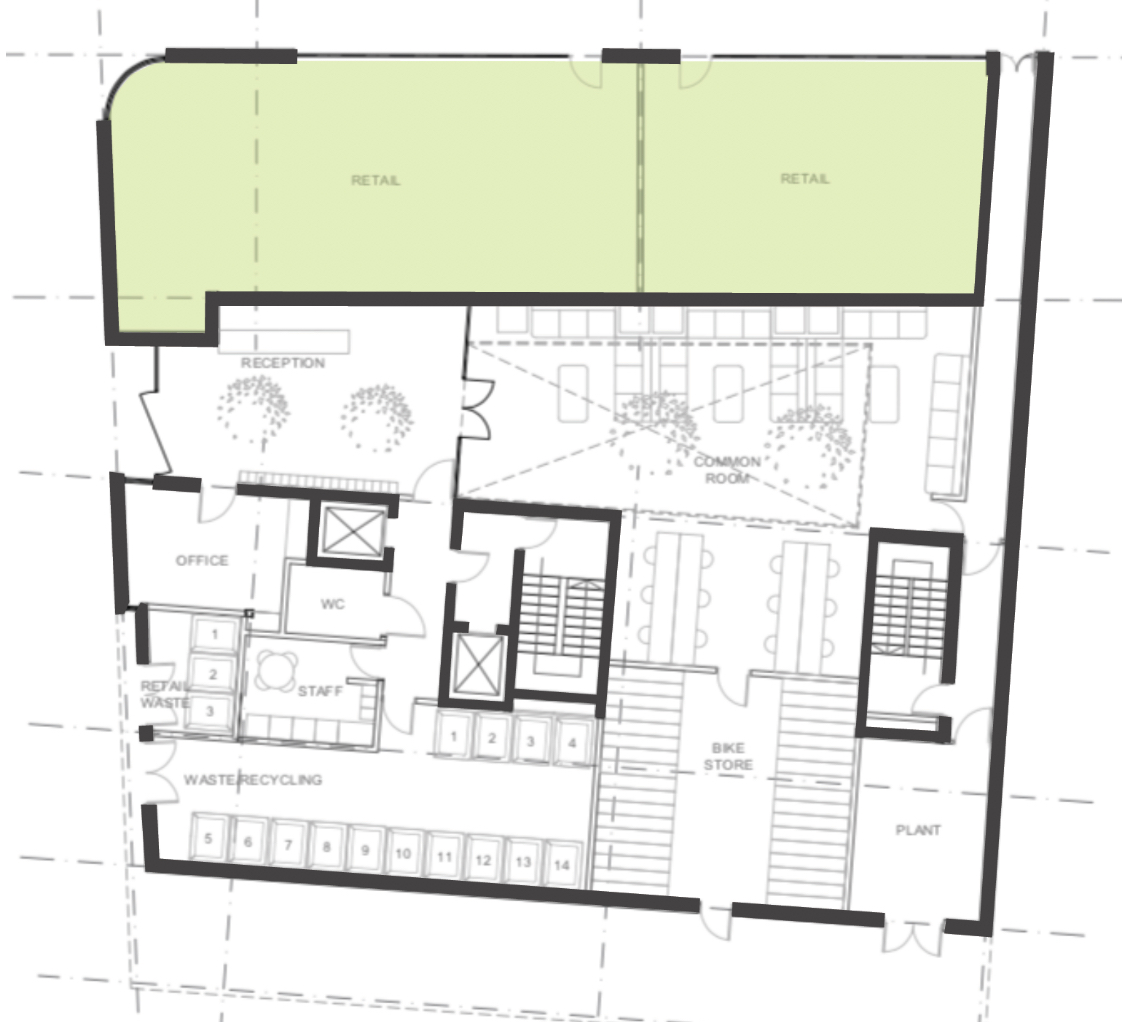
‘Park Life’ has a planning consent for the erection of a 5-11 storey mixed use development to provide student accommodations for 134 bed spaces with associated communal facilities and two retail units at ground floor level.
This development successfully addresses the nationwide issue of climate change and its impact on the planning system whilst embracing the latest BREEAM regulations.
The Building Research Establishment places this development in the top 1% of construction for sustainable and environmental best practise.
A prime heart of the city freehold development opportunity. A high-quality regeneration scheme, delivering flexible, high-density accommodation while embracing the critical issues of climate change.
Regeneration scheme of 46,306 sq ft GIA/33,626 sq ft approved.
Two student accommodation blocks over 11 floors, including two retail/restaurant units to the main frontage.
- Site area 6297m2
- less than 150m from Southampton Central Parks
- less than 500m from WestQuay Shopping Centre
- Exceptional local amenities
- Excellent transport links
- Minutes from Solent University and University of Southampton
The scheme achieves the BREEAM Outstanding preassessment level. Planning conditions need a BREEAM excellent level only.
The Perfect Location
The proposed development is located in Southampton, Hampshire, on the south coast of the UK. It lies 111.2 kilometres (69.1 miles) south west of London.
The Property benefits from strong transport communications.
- M3 located to the north, accessible in 20 minutes (7.9 kilometres) by car providing connections to London.
- M27 located to the north west accessible in 19 minutes (10.1 kilometres) by car which provides transport links west to Bournemouth and east to Portsmouth and to London via the A3.
- Rail links are accessible on foot at Southampton Central Station (1.9 kilometres/1.2 miles) which is serviced by the Great Western Railway, Cross Country, South Western Railway and Southern train line, providing frequent services to London, Waterloo, Cardiff, Portsmouth and Brighton.
- Southampton Airport is accessible in 12 minutes via train, providing flights to central Europe.
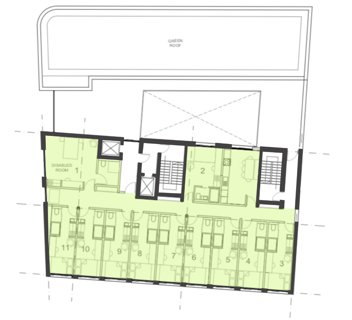
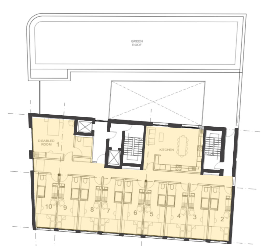
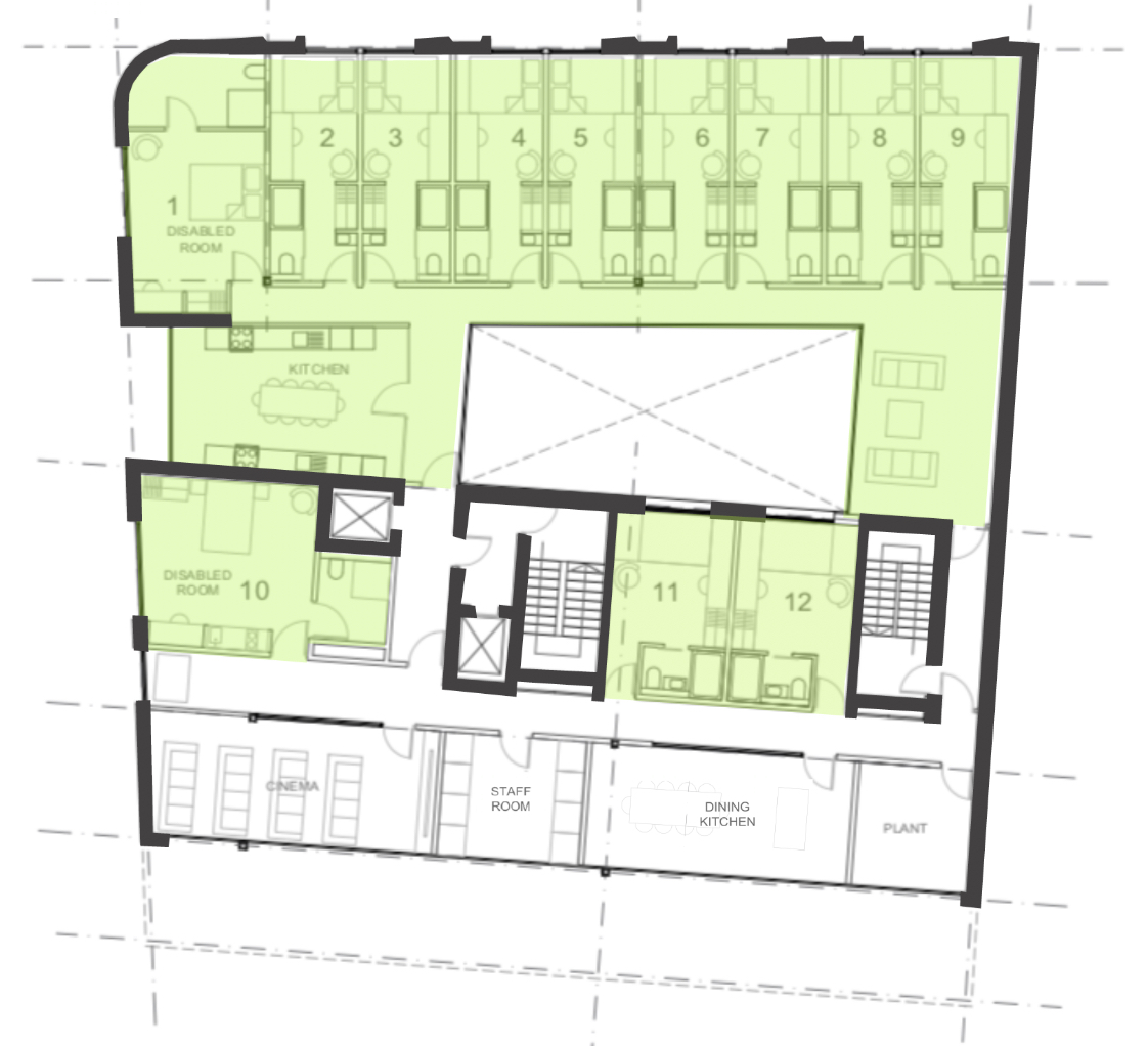
Floor Plans
HOTEL STYLE FLOOR LAYOUTS
CLUSTER FLAT FLOOR LAYOUTS
If you would like to download a PDF copy of our Park Life Brochure please click here.
Contact:
Raymond Mullins
Director
Christina Mullins
Director
T: 07768110466
T: 07760386574
